EC-S5注塑驱控一体箱体接线说明-九州酷游(ku游)数控

九州酷游(ku游)

EC-S5注塑驱控一体箱体接线说明

[ 发布日期:2021-04-16 ] 来源: 【打印此文】 【关闭窗口】

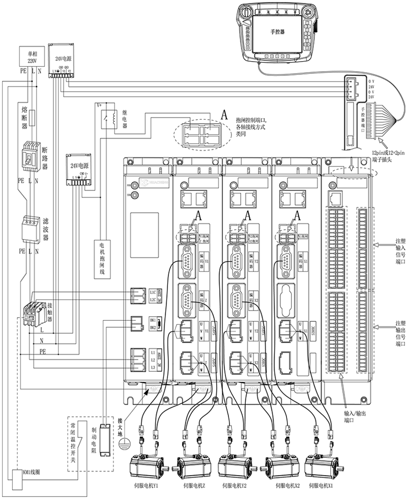
五轴注塑驱控一体化机械手控制系统-EC-S5,箱体整体外观接线说明:


注意:

1)用户需要自行评估IO电源是否超出标配50W,如超出,则需要自行更换大功率电源。

2)接线完成后手控器上出现的报警请按用户手册“8.4 报警及其解决方法”进行处理,报警有功能类和伺服报警类。

功能类报警:注塑多轴机械手控制系统功能类报警及解决方法,伺服类报警:注塑多轴机械手控制系统驱控一体伺服类报警信息及解决方法

版权所有 © 深圳市九州酷游(ku游)工业控制股份有限公司 未经许可不得复制、转载或摘编,违者必究  版权声明

Copyright © Shenzhen Huacheng Industrial Control Co., Ltd. All Rights Reserved.

网站ICP备案号: 粤ICP备19106162号

技术支持:新新网络

咨询在线客服

咨询电话

13924666952

400-158-1606

官方客服微信